En Venta
DEPTO. 2 DORMITORIOS
Código: 202499

Salta 1981, S2000 Rosario, Santa Fe, Argentina, Rosario, Santa Fe, Argentina.

USD61.000

Departamento
Compartir esta Propiedad

Descripción de la Propiedad

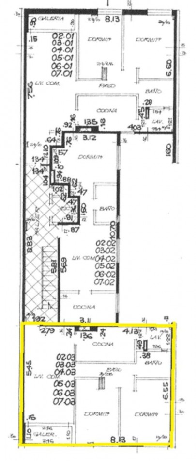
Departamento en venta ubicado en Salta 1981, en sexto piso al contrafrente, lo que le otorga tranquilidad y buena luminosidad.

La unidad se compone de un amplio living–comedor, con un gran ventanal que permite el ingreso de luz natural y da acceso a un balcón integrado al ambiente principal, generando mayor amplitud y funcionalidad. Cuenta con cocina independiente, equipada y con ventilación natural, y lavadero separado.

El sector íntimo dispone de dos dormitorios bien distribuidos y un baño completo.

La propiedad posee una superficie total aproximada de 54 m², resultando una opción cómoda y funcional, ideal tanto para vivienda permanente como para inversión.

Mas detalles
  • Balcon
  • Luminoso
  • Agua Corriente
  • Cloacas
  • Electricidad
  • Red Gas Natural
  • Ascensor
  • Antigüedad 57 años